X
Fragmat
Bosanski
Slo
English
Deutsch
Italiano
Magyar
Hrvatski
Srpski
Primjenjiva rješenja
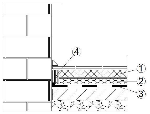
// SANACIJA BETONSKOG PODA – POBOLJŠANA IZOLATIVNOST
SANACIJA BETONSKOG PODA – POBOLJŠANA IZOLATIVNOST
Composition
Estrih
(0,031W/mK)
FRAGMAT NEO SUPER 100
Hidroizolacija
IZOTEKT T4 PLUS
STIROTRAK